You are now in the main content area

Inclusive & Accessible Change Spaces

We respect everyone’s right to choose the change space and washroom that is appropriate for them. This reflects Toronto Metro University's commitment to create safe and accessible washroom spaces for trans and gender diverse members of our community.

In addition to our existing women’s and men’s spaces, the following options are available to members of our community:

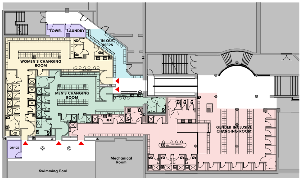
  • Private change and/or shower stalls within gendered change rooms:
    • Women's change space: One private, lockable change space along the east wall of the change room and several private shower stalls with curtain dividers in the main shower area.
    • Men's change space: Two private change-and-shower stalls (spaces where you can change and shower in full privacy behind a locked door) at the top of the ramp between the locker and shower areas of the change room and several private shower stalls with curtain dividers in the main shower area.
  • Single-occupancy, universal and accessible washroom in RAC 108 (adjacent to the customer service centre at the south end of the building).
  • Universal, all gender change space with showers in KHW 268 - access controlled by OneCard (all students automatically have access; members can request access via recreation@torontomu.ca
  • A passenger lift is located on the south side of the building (closest to the Front Desk). Please see staff for access.
RAC Change Room Renovations

Plans are underway to renovate the RAC change rooms. Along with modern finishes and amenities, the new design will prioritize and incorporate best practices with respect to accessibility and inclusion of trans, non-binary and gender diverse members of our community.

  • Single-occupancy, all gender, accessible change space with shower: Third floor by ice rink team rooms
  • Single-occupancy, all gender, accessible washroom between women's and men's Fitness Centre changerooms
  • Single-occupancy, all gender, accessible washrooms throughout the building
  • Ice rink team rooms designated as all gender change spaces and include privacy curtains

​Special thanks to the TMSU's Trans Collective (external link, opens in new window)  for their advocacy in making our spaces and programs more inclusive. 

Scent-Free Change Rooms & Facilities

Help keep the air we share healthy and fragrance-free!

The chemicals used in scented products can make some people sick, especially those with fragrance sensitivities, asthma, allergies and other medical conditions.

As students and members who enjoy the RAC, MAC and Kerr Hall, please:

  • Do NOT wear perfume, cologne, aftershave and other fragrances
  • Use unscented personal care products in our facilities - and always

Image/poster credit: Canadian Centre for Occupational Health & Safety (external link)